

湖州301平米以上别墅轻奢风格装修效果图
★ 轻奢格调
轻奢主义,是一种简明、轻快、低调的生活格调,在当下都市生活中,许多人还缺乏一掷千金追求奢华的能力,但是内心还是不放弃追求更高层次的生活方式,而这种低调的轻奢格调,便受到强烈的追捧。
★ 生活品质
一家人的宜居空间,不只是一种审美上的视觉享受,同时其功能舒适性也要满足家人需求,本案便在轻奢基础之上,完善居家功能,优化家人生活动线,筑就更加舒适便捷的温馨生活。

湖州301平米以上别墅轻奢风格装修效果图
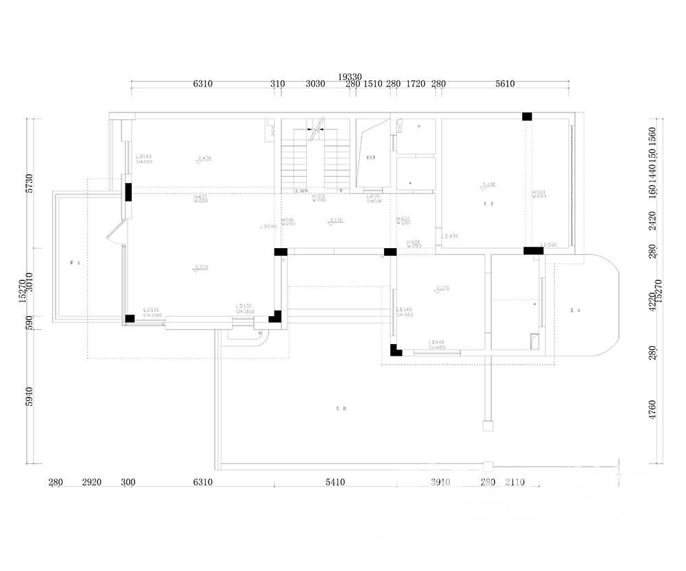
▲ 地下室平面图

湖州301平米以上别墅轻奢风格装修效果图
▲ 地下室布局图
利用丰富的创意展现生活的高姿态,拥有高格调的大理石装饰茶室地面,搭配浅色调的木饰面墙面,与传统中式桌椅糅合,展现别具格调的新时尚,安静雅致的环境氛围,无论独自品茗还是会客闲聊,都是一处绝佳的场所。

湖州301平米以上别墅轻奢风格装修效果图
- 别墅装修-茶室 -
延续了茶室的设计基调,保证了别墅地下室空间风格的和谐统一,干净利落的环境,搭配几幅现代简约的画作,透露着时尚潮流气息。

湖州301平米以上别墅轻奢风格装修效果图
- 别墅装修-桌球室 -
观影娱乐是一种很好的放松方式,所以柔软的地面是必不可少的元素,灰色的地毯延续着全屋的基础色调,踏入影音室的一瞬间,就会被这种柔软舒适的感受,时尚色彩营造的氛围所感染,彻底的放松自己的身心。

湖州301平米以上别墅轻奢风格装修效果图
- 别墅装修-影音室 -

湖州301平米以上别墅轻奢风格装修效果图
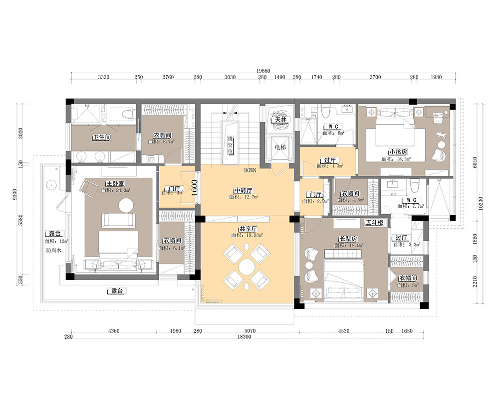
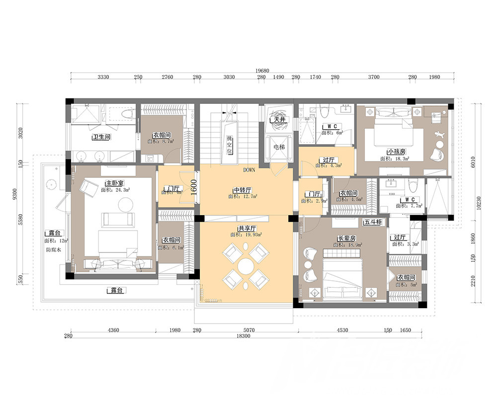
▲ 别墅一层平面图

湖州301平米以上别墅轻奢风格装修效果图
▲ 别墅一层布局图
花开富贵,是一种对生活的美好期许;精致大气,是对生活品味的一种宣扬;图案素雅的矮脚柜,搭配优美的银杏叶画作及散发蓬勃朝气的鲜花,在木饰面的映衬下,彰显高颜值的轻奢品味。

湖州301平米以上别墅轻奢风格装修效果图
- 别墅装修-玄关 -
来到客厅,全方位的大理石装饰,展现出大宅别墅应有的恢弘大气,看似装饰布局简洁清爽的电视区域,实则蕴含着匠人们精心巧琢。
完美复原效果图的面貌,丝毫不减的轻奢感,大理石塑造的电视背景墙,书刻着“青山披绿影,铭居出豪门”的语句,彰显大宅风范,又为家宅赋予了中式传统府邸的雅致高贵;同时电视背景墙拐角处也巧妙的利用了空间,做了木隔板,用于收纳,可谓美观与实用并存。

湖州301平米以上别墅轻奢风格装修效果图
- 别墅装修-客厅 -
沙发区域,深邃稳重的黑色皮质沙发,端庄大气,而简约小巧的茶几,更显精致巧妙,使得客厅氛围稳重又不失活泼,融洽舒适,在此会客也不会造成双方的拘谨。

湖州301平米以上别墅轻奢风格装修效果图
- 客厅 -
大理石与生态板材的激烈碰撞,都市味道与自然气息的完美协调,令这块被木饰面环绕的饮茶区域变得更为清静宜人。

湖州301平米以上别墅轻奢风格装修效果图
- 别墅装修-品茶区 -
四面合围,青砖黛瓦,闲将怡情踏幽径,一片浓阴带露噙,庭院的设计同室内一样重要,从水电规划,到精致的悉心设计,只为筑就一方闲适怡人的休闲环境。

湖州301平米以上别墅轻奢风格装修效果图
- 别墅装修-庭院 -
虽无小桥流水山花野果,而这一方绿植鲜花为生活带来盎然生机,与家人共享世间最为幸福温暖的时光。

湖州301平米以上别墅轻奢风格装修效果图
- 庭院 -
蜿蜒的青石板路,穿梭绿意之中,仔细品品,却有大隐于市的轻松之感。

湖州301平米以上别墅轻奢风格装修效果图
- 庭院 -

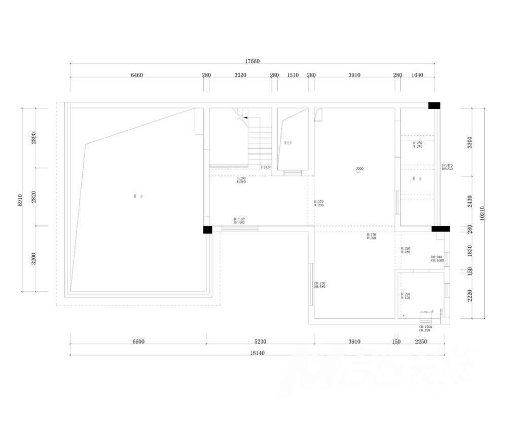
湖州301平米以上别墅轻奢风格装修效果图
▲ 别墅二层平面图

湖州301平米以上别墅轻奢风格装修效果图
▲ 别墅二层布局图
大理石铺设的楼梯,让空间更富有变化的光泽,层次分明,在展现家宅功能性的同时散发着高级美感。

湖州301平米以上别墅轻奢风格装修效果图
- 别墅装修-楼梯 -
宛若青山绿水的背景墙,为卧室赋予了诗意般的清净雅致,在这种高格调的氛围之中,品味温馨的生活味道,享受舒适的休息时光。

湖州301平米以上别墅轻奢风格装修效果图
- 别墅装修-主卧 -
采用不同色调以及材质的家具予以区分,打造出极简轻奢的高雅生活风,有生活,更有温度。

湖州301平米以上别墅轻奢风格装修效果图
- 主卧 -
暖黄色与玛瑙绿的邂逅,经典与时尚兼具,以其高饱和度的色泽,不仅产生舒适的视觉效果,也散发着高格调的轻奢质感。

湖州301平米以上别墅轻奢风格装修效果图
- 主卧 -
不同的质感延展出不同情调的空间视觉,不刻意,不夸张,舒适自在,明晰的干湿分离,也更好的保证了主卧卫生间的干净整洁,方便清理。

湖州301平米以上别墅轻奢风格装修效果图
- 别墅装修-主卧卫生间 -
一幅花鸟图,一幅花开富贵,吉祥如意的寄托,素雅有格调的背景墙辅以木饰面,有质感也有浓郁的自然芬芳。

湖州301平米以上别墅轻奢风格装修效果图
- 别墅装修-次卧 -
以白色搭配孔雀蓝,使空间充满惬意,展现出有別于现代主义冷冽的轻奢感。

湖州301平米以上别墅轻奢风格装修效果图
- 次卧 -

湖州301平米以上别墅轻奢风格装修效果图
▲ 别墅三层平面图

湖州301平米以上别墅轻奢风格装修效果图
▲ 别墅三层布局图
宽敞明亮的休闲空间,是一处享受闲暇时光的好去处,精致简约的家居陈设,给人清爽的感觉,准备几份茶点,与家人享受闲暇时光,领略窗外美景。

湖州301平米以上别墅轻奢风格装修效果图
- 别墅装修-休闲区 -
多元化的材料组合搭配,丰富空间的色彩层次和质感,简洁独特的现代设计语言,让轻奢风的表达方式更加新颖时尚,书房整体奢而不喧,于温暖阳光之中,静享书香时光。

湖州301平米以上别墅轻奢风格装修效果图
- 别墅装修-书房 -
超乎想象的轻奢生活格调,高级品味的完美复现理想,筑就轻奢风范的家
大信君汇湾轻奢风格
轻奢风格101-200平米四居室
荔园悦享星醍轻奢风格案例
轻奢风格201-300平米别墅
雅居乐山海郡轻奢风格
轻奢风格101-200平米三居室
保利云禧轻奢风格案例
轻奢风格101-200平米四居室
苏都花园轻奢风格案例
轻奢风格301平米以上别墅
轻奢风格案例
轻奢风格101-200平米三居室
景德镇昌南名都轻奢风格案例
轻奢风格101-200平米三居室
保山101-200平米轻奢风格案例
轻奢风格101-200平米四居室